Italiano
280.000 €

QUADRILOCALE IN VIA MUREDEI

Appartamento in vendita • Trento (S. Pio X) - via muredei
In zona molto servita, proponiamo in vendita ESCLUSIVA, appartamento a piano rialzato, con due lati liberi ed una buona esposizione ad est e ovest permettendo una buona luminosità sia al mattino che nel pomeriggio.
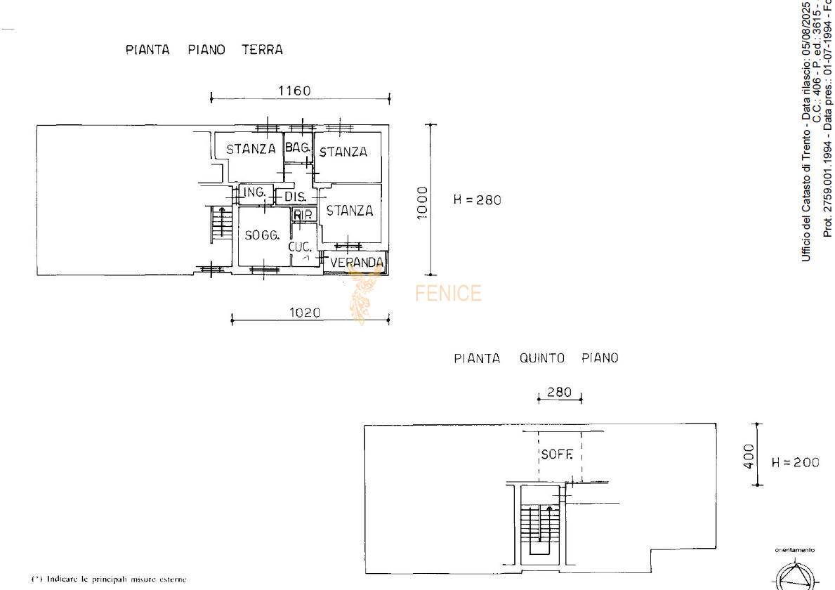
La superficie utile è di circa mq. 80 così suddivisi: comodo e spazioso atrio di ingresso, soggiorno con accesso a cucinotto e ripostiglio e ad una graziosa veranda esposta a ovest, corridoio, tre comode stanze e bagno finestrato.
L'appartamento si presenta in discrete condizioni, necessita di alcuni lavori di ristrutturazione, le finiture interne sono originali ma ben manutentate negli anni. I serramenti sono in Pvc con doppio vetro, il riscaldamento autonomo a radiatori con caldaia. Di pertinenza una cantina al piano seminterrato, una soffitta nel piano sottotetto, n. 1 posto auto a rotazione non di proprietà. Il contesto è molto ordinato e curato con spazi verdi comuni, piccolo parco con giochi, e posti auto comuni. L'immobile è della fine degli anni '50, ha un nuovo ascensore e anche un nuovo portoncino di ingresso. La certificazione energetica è in fase di elaborazione. L'appartamento risulta essere una ottima soluzione per famiglie che amano vivere in zona centrale e ottimamente servita ma anche per investitori.
Caratteristiche principali
Codice
V000207
Città
Trento (S. Pio X)
Categoria
Appartamento
Prezzo
280.000 €
Locali
5,5
Camere
3
Bagni
1
Mq
130
Balconi
1
Piano
1,5
Classe energetica
In fase di valutazione
Stato Immobile
Buono
Grado
Medio
Posizione
Centro
Panorama
Vista Giardino
Orientamento
Ovest Est
Lati Liberi
2
Giardino
Comune
Arredi
Semi Arredato
Tipo Soggiorno
Soggiorno
Tipo Cucina
Cucinotto
Riscaldamento
Autonomo
Tipo Riscaldam.
Caldaia
Tipo Impianto
Radiatori
Fonte Energetica
Metano
Acqua Calda
Autonoma
Infissi
PVC Doppio Vetro
Serramenti
Buono
Persiana
Tapparella PVC
Pavim. Giorno
Linoleum
Pavim. Notte
Linoleum
Pavim. Cucina
Linoleum
Pavim. Bagno
Ceramica
Isolamento termico
Nessuno

Accessori: Ascensore, Doppi Vetri, Parco Condominiale, Passaggio Automobilistico, Passaggio Pedonale, Porta Blindata, Ripostiglio

Mappa
via muredei , Trento (TN)
Condividi su
Cookie preference