Italiano
770.000 €

ELEGANTE APPARTAMENTO PIANO ALTO CON BALCONE

Appartamento in vendita • Trento (Bolghera) - via zara 12
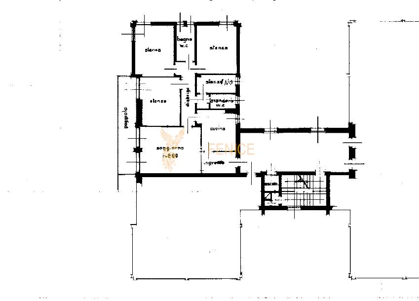
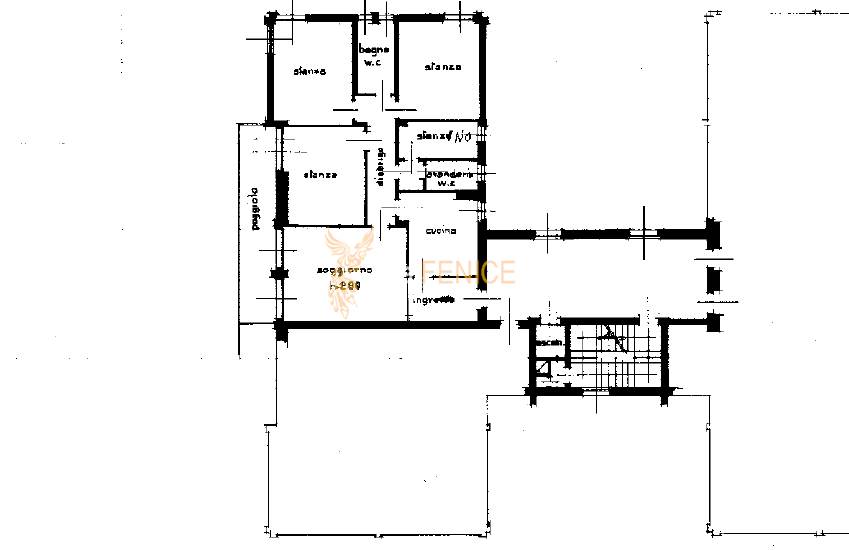
PROPONIAMO In vendita in esclusiva, elegante appartamento, molto luminoso, di ampie metrature, piano alto con ascensore. Ingresso, grande e luminoso soggiorno con accesso al balcone esposto a ovest, comoda cucina abitabile con annesso disbrigo/locale lavanderia e bagno di servizio finestrato, tre camere da letto, una quarta stanzetta/studiolo, secondo bagno finestrato con vasca, cantina e garage singolo e posto auto. Possibilità di acquisto un secondo garage di 23 mq. a parte. L'appartamento si presenta in ottime condizioni, con rifiniture eleganti. E' libero, disponibile da subito e viene venduto arredato di cucina completa di elettrodomestici e di armadi/scafali su misura. La richiesta è di Euro 770.000
IN COLLABORAZIONE CON REALCASA
Caratteristiche principali
Codice
V000204
Città
Trento (Bolghera)
Categoria
Appartamento
Prezzo
770.000 €
Locali
7,5
Camere
3
Bagni
2
Mq
160
Box
1
Mq Box
13
Posti auto
1
Balconi
1
Mq Balcone
17
Piano
3
Classe energetica
C
Stato Immobile
Buono
Grado
Signorile
Posizione
Centro
Panorama
Vista Aperta
Orientamento
Est Nord Ovest
Lati Liberi
3
Tipo Cucina
Abitabile
Riscaldamento
Centralizzato
Tipo Riscaldam.
Caldaia a Condensazione
Tipo Impianto
Pavimento
Fonte Energetica
Metano
Acqua Calda
Centralizzata a Pannelli
Raffrescamento
Split
Infissi
PVC Doppio Vetro
Serramenti
Buono
Persiana
Tapparella Metallo
Pavim. Giorno
Parquet
Pavim. Notte
Parquet
Pavim. Cucina
Ceramica
Pavim. Bagno
Ceramica
Accesso Disabili
Nessuna Barriera
Accesso interno disabili
Pieno accesso
Isolamento
Presente

Accessori: Antifurto, Aria Condizionata, Doppi Vetri, Lavanderia, Porta Blindata, Ripostiglio, Tapparelle Elettriche, Video Citofono

Mappa
via zara 12 , Trento (TN)
Condividi su
Cookie preference